
G e o f f B r o w n S t u d i o
07 HILL STREET W1
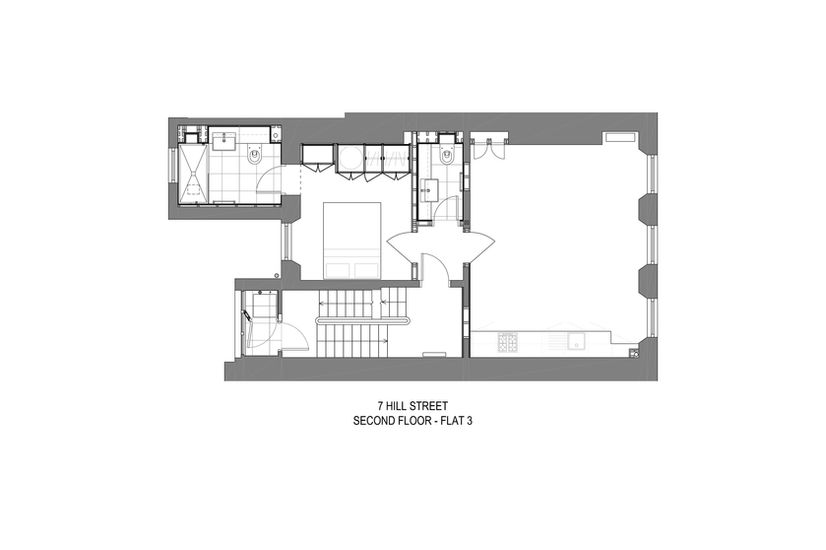
CONVERSION OF GRADE II LISTED GEORGIAN TOWN HOUSE FROM 2 APARTMENTS TO 4 APARTMENTS
COMPLETED | 2019
CONSTRUCTION VALUE | £ 2.47 MILLION
CLIENT | BERKELEY SQUARE HOLDINGS
PROJECT MANAGEMENT | ASTREA ASSET MANAGEMENT
PLANNING + LISTED BUILDING CONSENT | GEOFF BROWN STUDIO
ARCHITECTURE | GEOFF BROWN STUDIO
CONTRACT ADMINISTRATION | GEOFF BROWN STUDIO
STRUCTURAL ENGINEERING | BRIDGES POUND
BUILDING SERVICES | PETER DEER AND ASSOCIATES
ACOUSTIC CONSULTANCY | EMTEC PRODUCTS
COST CONSULTANCY | SAWYER AND FISHER
FURNISHINGS | LAUGHLAND JONES
CDM ADVISER + PRINCIPAL DESIGNER | ORSA PROJECTS
CONTRACTOR | KIND AND COMPANY [BUILDERS]
GEOFF BROWN STUDIO TEAM:
GEOFF BROWN | GIORGIO ANDREINI | ANNA BOROWSKA |
MARTINA RADOSOVSKA | ANDRE LOBAO
PROJECT DESCRIPTION:
PLANNING PERMISSION AND LISTED BUILDING CONSENT TO CONVERT THIS GRADE II LISTED TOWN HOUSE c1750 FROM 2 INCONVENIENT APARTMENTS TO 4 NEW APARTMENTS, INCLUDING PERMISSION FOR EXTERNAL CONDENSER UNITS IN ACOUSTIC ENCLOSURES TO SERVE ALL 4 FLATS.
THE WORKS INVOLVED THE COMPLETE STRIP OUT OF ALL FINISHES
AND BUILDING SERVICES, RECONSTRUCTION OF A SMALL EXTENSION TO THE REAR LIGHTWELL TO PROVIDE A PLATFORM FOR THE MAIN CONDENSER ENCLOSURE, AND FULL REFURBISHMENT OF THE BUILDING INTERIOR.
















