
G e o f f B r o w n S t u d i o
16 CHARLES STREET W1
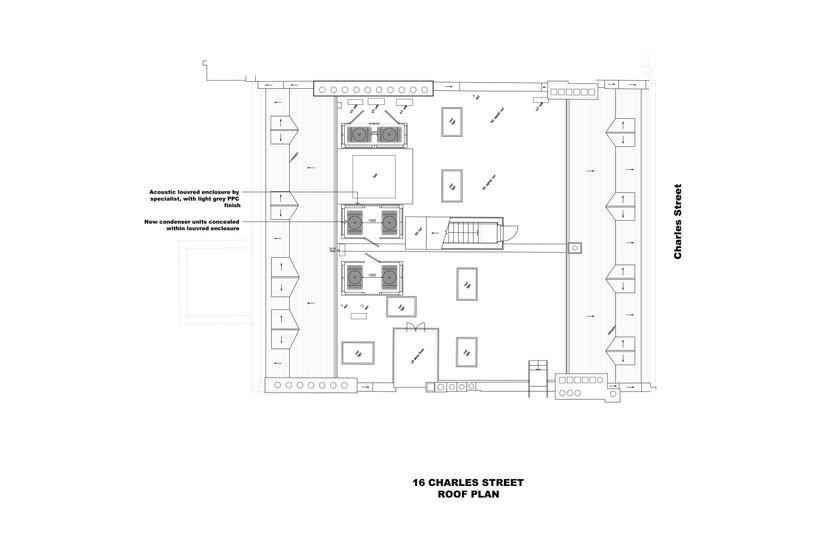
REPLACEMENT OF ROOF PLANT, COMFORT COOLING AND
JOINERY CASINGS IN GRADE II STAR PERIOD OFFICE BUILDING
COMPLETED | 2017
CONSTRUCTION VALUE | £ UNDISCLOSED
CLIENT + BUILDING MANAGER | GVA WEST END MANAGEMENT
PLANNING | GERALD EVE
ARCHITECTURE + JOINERY | GEOFF BROWN STUDIO
BUILDING SERVICES | HILSON MORAN
CONTRACT ADMINISTRATION | HILSON MORAN
ACOUSTIC CONSULTANT | EMTEC PRODUCTS
STRUCTURAL ENGINEER | BRIDGES POUND
CDM ADVISER + PRINCIPAL DESIGNER | HILSON MORAN
CONTRACTOR | G4 ENVIRONMENTAL CONTROL
GEOFF BROWN STUDIO TEAM:
GEOFF BROWN | GIORGIO ANDREINI | ANNA BOROWSKA
PROJECT DESCRIPTION:
GRADE II STAR LISTED GEORGIAN BUILDING FROM c1750
THE PROJECT COMPRISED REPLACEMENT OF ROOF MOUNTED
CONDENSERS WHICH COULD BE SEEN FROM STREET LEVEL WITH
NEW SMALLER ROOF MOUNTED CONDENSERS REPOSITIONED
TO BE INVISIBLE FROM THE PUBLIC DOMAIN
FAN COIL UNITS AND JOINERY CASINGS THROUGHOUT THE
BUILDING WERE REPLACED WITH NEW CASINGS TO A DESIGN
ACCEPTABLE TO THE CONSERVATION OFFICER AT
WESTMINSTER CITY COUNCIL

















